Wembdon Parklands Project overview
This project will provide a significant enhancement of a recovered scrubland area to provide a Parkland setting which will make the area accessible to our whole community, it will provide improved foraging conditions for the nearby badgers and an enhanced ecology for local reptiles as well as insects. The planting will be set out to provide a nature walk through the whole area and thereby improve the connectivity between this Parkland environment and the sports and other recreational facilities at the Wembdon Village Hall and two benches will be installed adjacent to the footpaths to provide resting and reflection points for those either exercising themselves or their pets or simply enjoying a few minutes time in a green and pleasant environment.
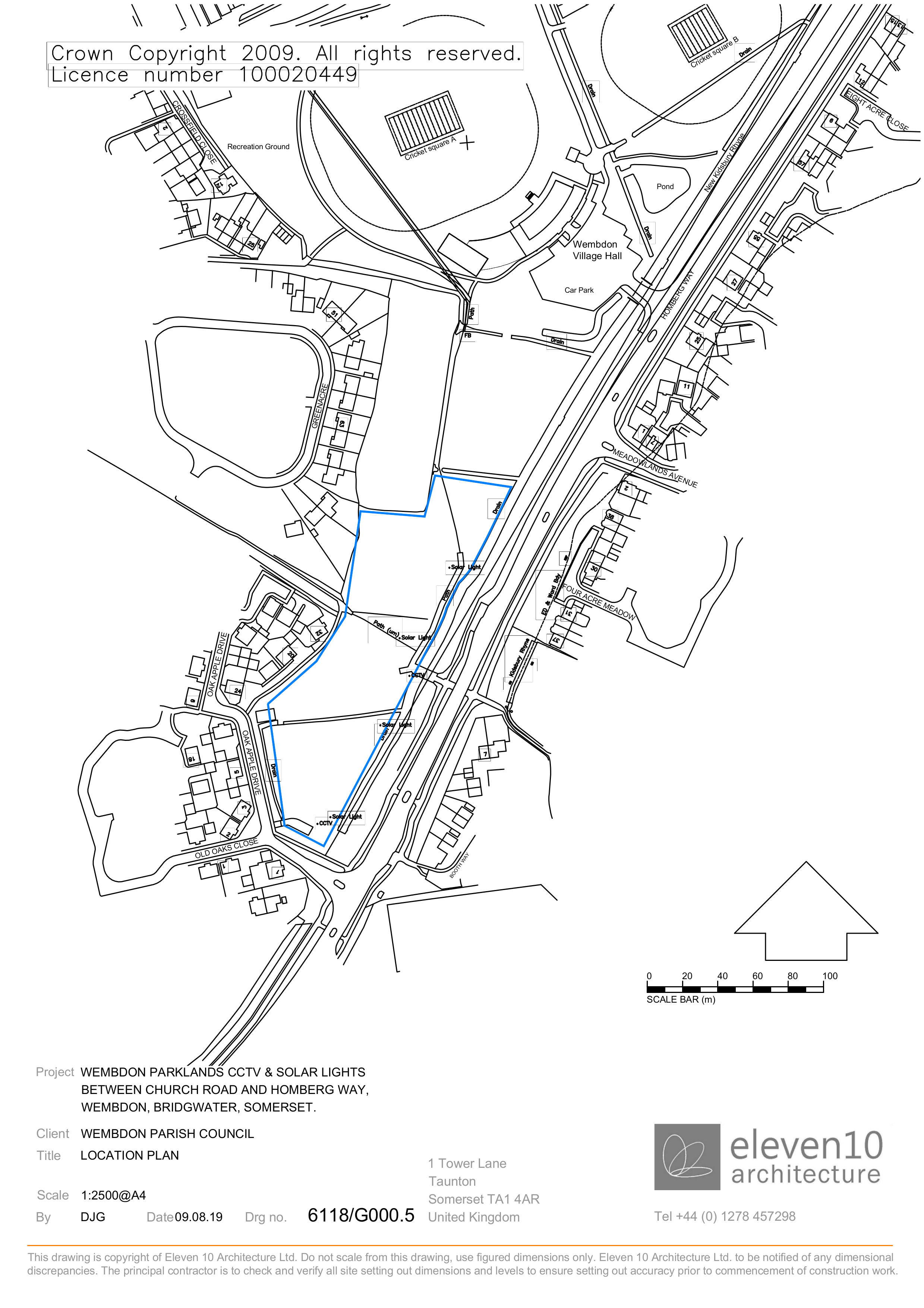
None of the existing trees and hedges will be removed but rather will be augmented with a series of sensory plants, prairie grasses and fruiting trees. To improve accessibility there will be a simple network of tarmac paths, which will provide access for everyone, including wheelchairs, mobility scooters, pushchairs and scooters, enabling everyone in our community to benefit from this project. To provide enhanced safety for the whole area the solar lighting currently installed along the footpath from the NDR to Church Road has been extended to cover the darker areas and CCTV has been installed to deter anti-social behaviour and vandalism.
The wide access directly from Wares Lane footpath onto the NDR is a major safety risk for both children and pets and also poses a significant hazard for motorists, who would not be expecting a dog or child to run onto the busy road from a concealed entrance. To reduce this risk this project had hoped to install self-closing gates at the end of the footpath, thus addressing a recognised safety risk in the Parish. However, that proposal has been vetoed by Somerset County Council. A metal bow topped fence, matching existing fences along that estate, has been installed along a section of the Parklands where badgers and/or pets may inadvertently run onto the adjacent NDR. The other boundaries will remain hedged to provide ready access for wildlife.
The project will also improve the drainage in this area, by improving the flow along an existing but silted drainage channel, which will also give improved water availability for foraging animals and other wildlife.
The project will provide an environment for enjoyment, relaxation and inclusiveness. The sensory borders will stimulate the senses. The nature trail will promote gentle activity and education, helping people make friends and meet others, giving them a feeling of belonging to the community. The most important aspect of the project is the landscaping and planting of mature trees, hedging and shrubs. This is essential in combating traffic noise and exhaust emissions from the adjacent NDR, making it a healthier space to enjoy, whilst conserving and enhancing the natural landscape to protect and encourage wildlife back into the area. To support this the project will install bat boxes and nesting boxes in the trees, Insect hotels will be installed and hedgehog boxes will be hidden in the hedgerows. We anticipate that more birds will also be attracted to the area and new fencing will make it safer for foxes and badgers as well as our children and our pets.



