Skip to content Skip to left sidebar Skip to footer

News

Temporary traffic lights on Quantock Road 27th to 29th February

Temporary traffic lights sign

There will be temporary traffic lights from Tuesday 27th to Thursday 29th February on Quantock Road. The work will be taking place to the east of Whitegates roundabout, between Danesboro Road and Quantock Avenue. This is to allow Wessex Water to repair a leak in a domestic water supply. A pedestrian walkway will be provided through the work area.

For further information about the work, you can contact Wessex Water on 0345 600 4 600.

Temporary traffic lights on Wembdon Rise 28th February to 1st March

Temporary traffic lights sign

We have just heard that there will be temporary traffic lights from Wednesday 28th February to Friday 1st March on Wembdon Rise, between Inwood Road and Wares Lane. This is to allow Wessex Water to carry out “Utility Repair and Maintenance Works”. A pedestrian walkway will be provided through the works.

For further information about the work, you can contact Wessex Water on 0345 600 4 600.

One of our parishioners has complained to the Parish Council that an advance warning sign placed next to the pedestrian crossing potentially obscures children waiting to cross. A Parish Councillor has phoned Wessex Water about this, and is expecting them to reposition the sign today.

Reminder: Closure of Sandford Hill – 12th February

A Road Closed sign

The section of Sandford Hill between Skimmerton Lane and Sandford Farm Approach will be closed on Monday 12th February 2024. The closure will start at 09:30 and is expected to last until 15:30 at the latest, to allow Openreach to replace a telegraph pole.

Residents in the affected section should still be able to access their properties.

The official notice for the closure states that for for further information you should contact Sunbelt Rentals on 03700 500 792 quoting reference ttro540539N.

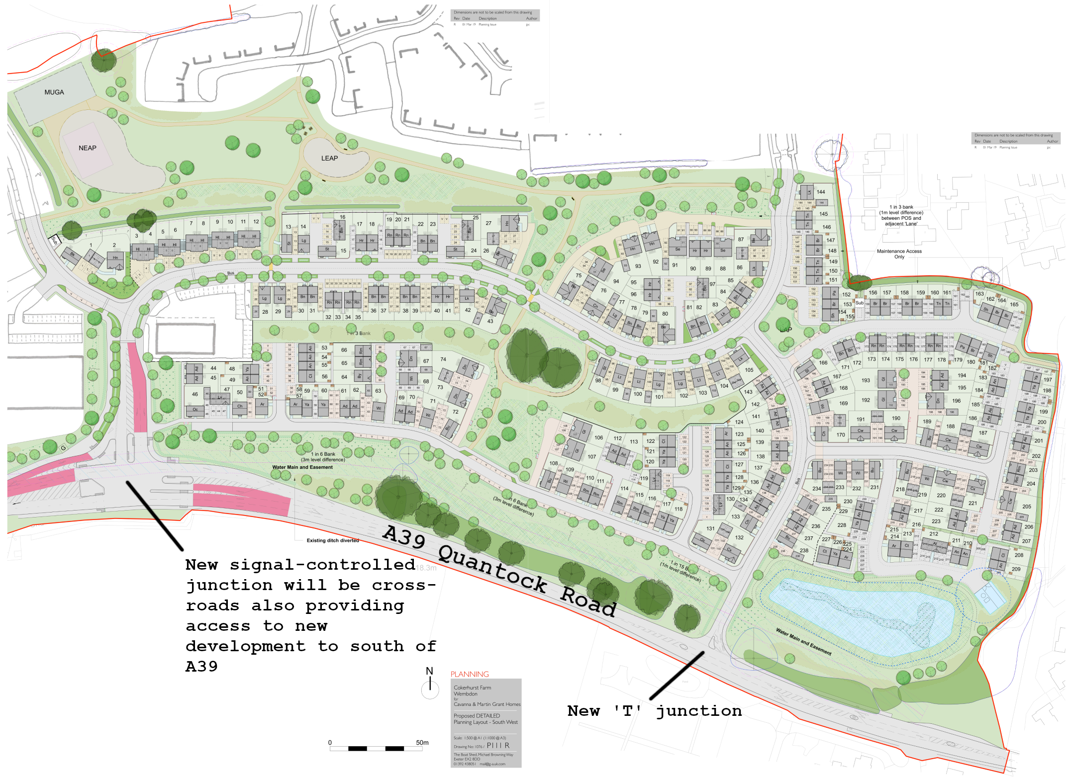
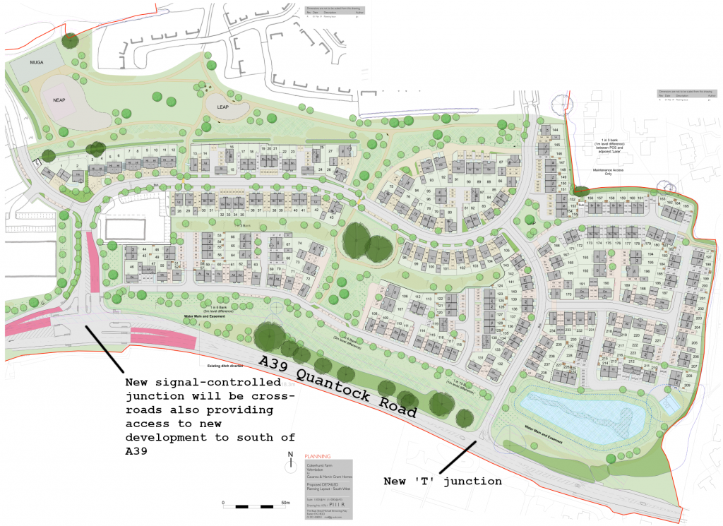
Roadworks about to start on A39 Quantock Road

The works to construct the road junctions for the Cokerhurst Farm development are finally expected to start next week. The consultants for the project told Wembdon Parish Council this week:

“After a slight delay, we are now in a position to commence the works at Cokerhurst Farm. The official start date is Monday 12th February, however you may see some enabling activities this week; including delivery of plant and welfare equipment. Traffic management will be placed on the A39 from next week.

“Our appointed contractor, Montel Civil Engineering Ltd, will be issuing a letter-drop to local residents this week. Advance warning signage is also being placed along the key routes.”

David Collin, the Project Manager, has told us that temporary traffic lights will be in place from 8pm to 6am over the nights of Monday 12th to Wednesday 14th February while they install the traffic management and lane restrictions. Any future use of traffic lights will also be at night

Although the A39 will remain open, there will be a temporary 20mph speed limit and reduced lane widths for the duration of the works. Since the introduction of the 20mph speed limit throughout Wembdon, Wembdon Parish Council have noticed a significant drop in the volume of through traffic the village. Councillors will continue to carefully monitor traffic volumes while the work is taking place.

Plan of Cokerhurst Farm development showing the two new junctions with the A39

Two new junctions will be constructed on the A39: the more westerly will be a signal-controlled 4-way junction which will also provide access to a separate development on the south side of the A39; the more easterly will be a ‘T’ junction with the secondary access to the Cokerhurst Farm development.

Closure of Sandford Hill – 12th February

A Road Closed sign

The section of Sandford Hill between Skimmerton Lane and Sandford Farm Approach will be closed on Monday 12th February 2024. The closure will start at 09:30 and are expected to last until 15:30 at the latest, to allow Openreach to replace a telegraph pole.

Residents in the affected section should still be able to access their properties.

The official notice for the closure states that for for further information you should contact Sunbelt Rentals on 03700 500 792 quoting reference ttro540539N.

HPC Consultation 22nd January

On Monday 22nd January HPC are holding a consultation regarding Development Consent Orders. This will be at the Village Hall from 11-3 in the Sedgemoor Room. All are welcome to attend.

You may well be asking, what are DCOs? They are significant planning changes that HPC want to make from the original planning approval. The main two changes relate to acoustic fish control and dry storage for spent fuel.

Important Parish Council meeting

An extra Parish Council meeting will be held in Wembdon Village Hall at 7.30pm on Monday 29th January when the Parish Councillors will decide the budget and precept demand for 2024-25.

The financial problems being experienced by Somerset Council are widely known, and the knock on effect for Town and Parish Councils is currently uncertain.

Parishioners are encouraged to attend the meeting on 29th January, as financial decisions made by the Parish Councillors may affect the amount that they will be paying the Parish Council in Council Tax in 2024-25.  There will be a public participation section of the meeting where parishioners will be invited to give their views.

THIS IS YOUR CHANCE TO TELL PARISH COUNCILLORS YOUR VIEWS ON HOW MUCH COUNCIL TAX YOU WILL BE PAYING TO WEMBDON PARISH COUNCIL IN 2024-25.

The agenda for the meeting can be viewed by clicking on this link.

Important message from the Leader of Somerset Council

The leader of Somerset Council, Councillor Bill Revans, has issued this notification to all Parish and Town Councils:

I am writing to give you the heads-up about the publication of some important papers for the 15 January meeting of the Executive Committee.

The Council is mindful of our promise to parishes be open and transparent, and provide you with information at the earliest opportunity.

You will be able to find the papers by clicking here

Budget Update papers

Central to the papers published later this evening, are Budget Update papers which set out the Council’s plan for setting a balanced budget for 2024/25 and bridge a £100m gap (the cause of which we have discussed many times but fundamentally driven by increasing costs, particularly in social care).

The plan to bridge the gap involves use of reserves, raising Council Tax by requesting an additional 5% (to 9.99%), and a capitalisation direction which would allow the council to borrow money or sell assets to fund day-to-day running costs.

Our discussions with Government continue and we hope there could be some movement, but we have to work with what we know now.

Savings options

Inevitably, a key part of the plan is increasing income by raising fees and charges, and importantly reducing or stopping spend in discretionary services across the Council.

Many of these options are extremely difficult, however officers were asked to consider everything when producing savings options, and these will be part of the Budget Update papers.

I know you have been asking for more detail around the savings options for some weeks now, so that you can have meaningful conversations with your parishes and set precepts. The publication of papers tonight may provide some guidance.

Please remember, these are options only. No decisions have been made and will not be, until budget-setting at Full Council on 20 February.

Where relevant, the Council will continue discussions with our parishes and partners and hope that in many cases others will be able to pick up some of these services.

If a saving is ultimately agreed, and requires consultation, that consultation will happen in due course.

The savings will generate media coverage this evening and in the coming days. The Council would always want you to get this sort of information directly rather than through the media, so please take a look at the papers later today.

Clearly, just about every saving has an impact on our staff in one way or another and I’d ask that we are all conscious of that in the coming days if you are in contact with our officers. And if savings options have a significant impact on identifiable staff roles. appropriate consultation will be undertaken with those people impacted.

To give you some idea of the territory covered by the savings, below is a summary of some. It is far from comprehensive, but gives an indication of the difficult decisions that lie ahead.

Efficiency savings:

  • Reviewing our contracts and use of consultants.
  • Reducing the number of council-operated buildings
  • Further transformation of IT.
  • Removal of all non-essential mobile phones.
  • Making best use of grants and external funding.
  • Reducing staff benefits including long service awards.

Harmonisation of service standards:

  • Reviewing grants paid to Parish Councils to maintain footpaths, playing fields and burial grounds.
  • Reviewing legacy grants, established by previous councils for community groups, and charging for emptying bins.

Adult Services:

  • Decommissioning properties that are no longer suitable.
  • Maximising fees and charges.
  • Reducing spend on mental health and substance misuse support.
  • Cease funding for employment support for carers and people with mental health needs.

Children’s Services:

  • Increasing in house foster carers so children can live in a family locally and reduce placement costs.
  • Increasing use of Council owned residential homes.
  • Reducing the cost of accommodation and support for vulnerable children over 16, through better commissioning.

Highways and public transport:

  • Reducing in planned and reactive highway maintenance.
  • Reviewing of subsidies for contracted bus services.
  • Increasing parking charges in line with inflation.

Waste:

  • Closing of five recycling centres.
  • Introducing a recycling site permit to stop non-Somerset residents using sites.

Community Services:

  • Ceasing council funding for Council owned toilets.
  • Ceasing funding for the CCTV service.
  • Reducing support to theatres in Somerset.
  • Closing tourism visitor centres.
  • Increasing fees for harbours, beach parking and cemeteries
  • Closing of Council run planting nurseries.

Elected Councillors and Democratic Function:

  • Reducing the number of Councillor meetings.
  • Reducing the number of Executive Lead Councillors.

Governance and consultation

Once again, please let me remind you that no decisions have been taken.

There are lots of conversations to be had before the 20 February budget-setting, as well an important governance timetable to follow, which will include recommendations from our Scrutiny and Audit Committees.

As a reminder, the process regarding budget setting is as follows:

  • 15 January. Meeting of Executive Committee will discuss Budget Update report, including savings proposed approach to bridging the funding gap.
  • 22 January. Budget consultation closes.
  • 25 January. Audit Committee to discuss technical budget papers and make recommendations to the Executive Committee.
  • 1 February. Meeting of the Corporate and Resources Scrutiny Committee. Due to discuss Budget Update report, including savings proposals.
  • 7 February. Meeting of Executive Committee to consider feedback from Scrutiny Committee and results of budget consultation before recommending budget for decision at Full Council.
  • 20 February. Full Council meets to agree final budget for 2024/25.

Last but not least, there is our public budget consultation to consider. Results from this will inform elected members at Somerset Council when they eventually have to make their decisions.

The budget consultation closes on 22 January so please take part if you haven’t already, and do share the link with your networks, contacts, and communities.

Sent on behalf of

Cllr Bill Revans

Leader, Somerset Council

Recycling and refuse collections over the holiday period

Somerset Council have told us that for there will be no collections on Christmas Day or Boxing Day. As a result, recycling and refuse collections next week will be two days later than normal. So, for example, collections will be made on Sunday 31st December instead of Friday 29th.

There will also be no collections on New Year’s Day, so collections that week will be one day later, e.g. Saturday 6th January instead of Friday 5th.

Garden waste collections will stop on Monday 25 December for a fortnight and will resume on Monday 8 January.

Recycling Centres will be closed on Christmas Day, Boxing Day and New Year’s Day, but otherwise will be open as usual.

More information (opens in new tab)

Somerset Council – Budget Consultation

Somerset Council has launched a public consultation on the Council’s budget. They say:

“It will offer a chance for people to have their say in light of the financial emergency, which was called in November.

“It’s open to all, and we are encouraging our Somerset communities, residents, businesses, stakeholders, and partners to take part.

“The consultation highlights several discretionary services which could be redesigned, reduced, or even stopped.

“The consultation is now live, and will close on 22 January.

“The link can be found at: https://somersetcouncil.citizenspace.com/comms/budget-consultation-2024-2025/

“It can also be completed in libraries and council offices across Somerset. It can also be completed in libraries and council offices across Somerset”.

Skip to content
Wembdon Parish Council
Privacy Overview

This website uses cookies so that we can provide you with the best user experience possible. Cookie information is stored in your browser and performs functions such as recognising you when you return to our website and helping our team to understand which sections of the website you find most interesting and useful.

More information about our use of cookies can be found in our Privacy Policy.